Prodaja, Stanovanje, 5+ več sobno, Ljubljana mesto, Udobje in varnost v arhitekturno zasnovanem družinskem domu

799.000 €

Opis

Po meri oblikovan družinski dom v vila bloku – Podutik, Ljubljana

V mirnem in zelenem okolju Podutika, le korak od narave, se nahaja izjemno 6-sobno stanovanje v dveh etažah, zasnovano z mislijo na udobje, varnost in estetsko dovršenost.

Stanovanje je bilo popolnoma prenovljeno leta 2017 po meri z arhitektom, kar se odraža v premišljenem tlorisu, vrhunskih materialih in brezčasnem dizajnu. Nahaja se v vila bloku z le nekaj stanovanjskimi enotami, kar zagotavlja zasebnost in mir.

Ključne prednosti:

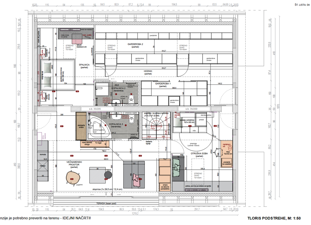
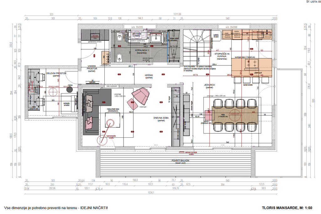
  •     skupna površina: 300 m², uporabna površina: 190 m²
  •     razkošen tloris v dveh etažah: 2 spalnici, kuhinja z jedilnico, 2 dnevna postora, pisarna, 3 kopalnice z WC-jem, 2 garderobna prostora
  •     dve prostorni terasi za sprostitev in druženje
  •     dve parkirni mesti v garaži
  •     talno gretje, klimatska naprava, alarmni sistem za popolno varnost
  •     opremljeno po meri – takoj vseljivo

Lokacija:

  • neposredna bližina narave in rekreacijskih poti
  • v bližini: dva Montessori vrtca, trgovina, osnovna šola v Kosezah
  • odlična povezava z mestnim avtobusom št.5

Stanovanje je idealno za družine, poslovneže ali mednarodne kupce, ki iščejo kakovostno bivanje v Ljubljani.

Kupec plača davek na promet nepremičnin v višini 2 % prodajne cene in strošek priprave pogodbene dokumentacije.
Za več informacij ali ogled me kontaktirajte na 070 698 833 ali na mail: mateja@media-nepremicnine.si 

Dodatno

  • Dodatno
    Terasa Klet Garaža Obnovljeno
  • Priključki
    Elektrika Voda Kanalizacija Optika Plinovod
  • Ogrevanje
    Plin CK Talno gretje
  • Lega
    Vzhod Jug
  • Luksuz
    Klima Bližina narave Mirna lokacija

Primerljive nepremičine